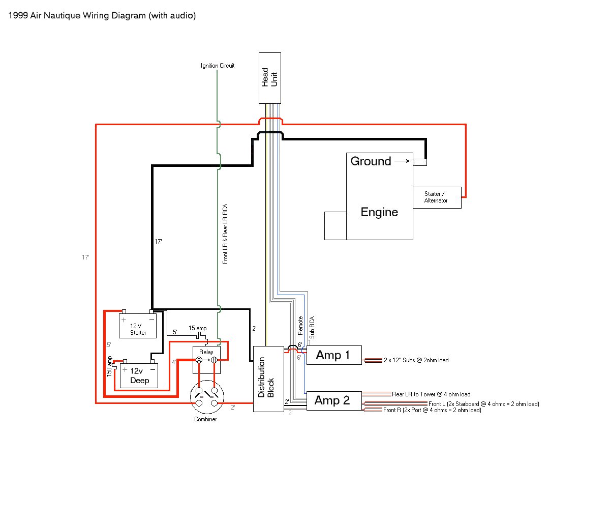
Ok, I thought I had accomplished my goal of having an isolated battery for my audio system so I could turn my boat off, listen to tunes, and not worry about running down the cranking battery. However, yesterday I noticed that if I turned the ignition breaker / switch off my head unit, amps, and WS-420 all shut off. Each of my amps, head unit, and WS-420 are wired (power and ground) to a distribution block. The block is wired power to Blue Seas battery switch and ground to cranking battery (all my grounds are unified, including the 2 different use batteries). I also have the Blue Seas relay in there off the switch. So my power lines for the audio system should be isolated from the cranking system, the key, etc., but I did notice before that the audio would go off for a second when turning over the engine (and did not realize this was odd for some reason).
However, yesterday I realized that the audio would not work without the ignition breaker/switch in the on position. This is a problem because some motor somewhere runs when the ignition switch is on (just found this out). Whatever that motor is (have not yet identified it) probably shouldn't be running for hours on end with the boat not running, and it will also drain the cranking battery. So what gives? How do I correctly completely isolate the audio system? Do I need to "un-unify" the grounds between by 2 batteries and move all the audio grounds to the audio battery? I was told not to do this when setting up the system, but it is the only think I can think of that would cause this. Although, now that I think about it, the head unit was originally installed by a dealer and was originally installed with power from the normal cranking system. Perhaps there is a key-on wire connected like a remote on to the head unit that I can simply disconnect? If so, anyone know what color that line would be?
I have a 99 Air with GT-40. Head Unit is Clarion M425. Amps are Alpine. Also a WS-420 EQ with remote on wired into Head Unit remote on. I have included my current wiring diagram of how I set everything up (but not including the WS-420, which is also wired to the distribution block).
However, yesterday I realized that the audio would not work without the ignition breaker/switch in the on position. This is a problem because some motor somewhere runs when the ignition switch is on (just found this out). Whatever that motor is (have not yet identified it) probably shouldn't be running for hours on end with the boat not running, and it will also drain the cranking battery. So what gives? How do I correctly completely isolate the audio system? Do I need to "un-unify" the grounds between by 2 batteries and move all the audio grounds to the audio battery? I was told not to do this when setting up the system, but it is the only think I can think of that would cause this. Although, now that I think about it, the head unit was originally installed by a dealer and was originally installed with power from the normal cranking system. Perhaps there is a key-on wire connected like a remote on to the head unit that I can simply disconnect? If so, anyone know what color that line would be?
I have a 99 Air with GT-40. Head Unit is Clarion M425. Amps are Alpine. Also a WS-420 EQ with remote on wired into Head Unit remote on. I have included my current wiring diagram of how I set everything up (but not including the WS-420, which is also wired to the distribution block).







Comment